Host & Stay - Lop Hall
Preview only — see all hotel photos
See all 24 photos
Hotel a térképen
Host & Stay - Lop Hall
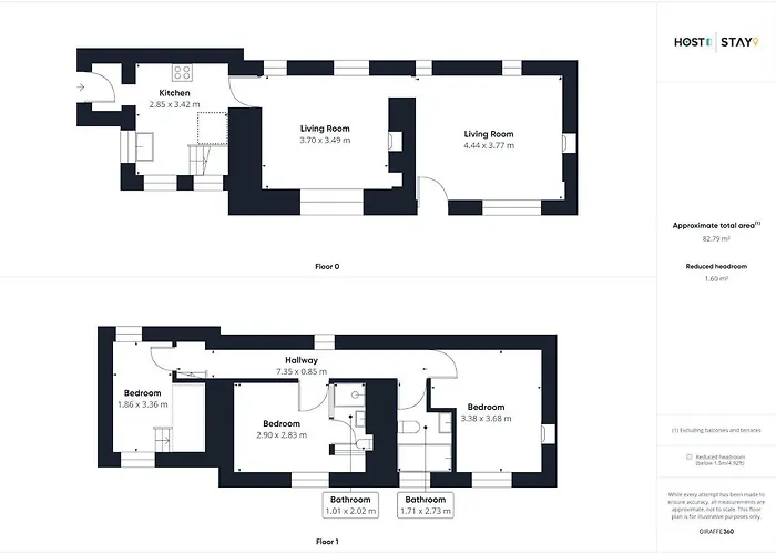
A Host & Stay - Lop Hall 1 km-re van a The Moors National Park Centre területétől és egy 2 hálószobás ingatlant kínál nyitott belső udvarral. Ehhez szálláshoz továbbá tartozik egy mikrohullámú sütővel, elektromos vízforralóval és hűtővel ellátott teljesen felszerelt konyha, így könnyedén elkészítheti kedvenc ételeit.
Danby központja 1 km-re található a villától. Ha ebben a villában száll meg, mindössze 13 perc sétára lesz az Inspired by.. Gallery területétől és 45 percnyi autóútra York városától. A The Seated Man a villa szomszédságában van.
Külön WC, fürdőkád és zuhanyzó találhatók a fürdőszobában.
A legközelebbi repülőtér a Durham Tees Valley, mely 55 km-re fekszik a Host & Stay - Lop Hall épületétől. A helyszínen többek között túrázás és kerékpározás is rendelkezésre áll.
Felszereltség
Főbb kényelmek
- Wifi
- Sporttevékenységek
- Háziállat megengedett
Szolgáltatások
- Nemdohányzó
- Wi-Fi
- Parkoló
- VIP be-/kijelentkezés
- Háziállat engedélyezett
- Füstérzékelők
- Tűzoltó készülékek
- Kulcs belépés
- Elektromos vízforraló
- Szárító
- Konyhaedények
- Kültéri étkezősarok
- Túrázás
- Kerékpározás
- Fűtés
- Ülősarok
- Belső udvar
- Étkezőasztal
- Vasaló eszközök
- Mosógép
- Ingyenes piperecikkek
- LCD TV
- Szőnyegezett padló
Irányelv
Térkép
Helyi látnivalók
Repülőterek
- Teesside International Airport (53 km)
Értékelések
100% -ban ellenőrzött vélemények